Description

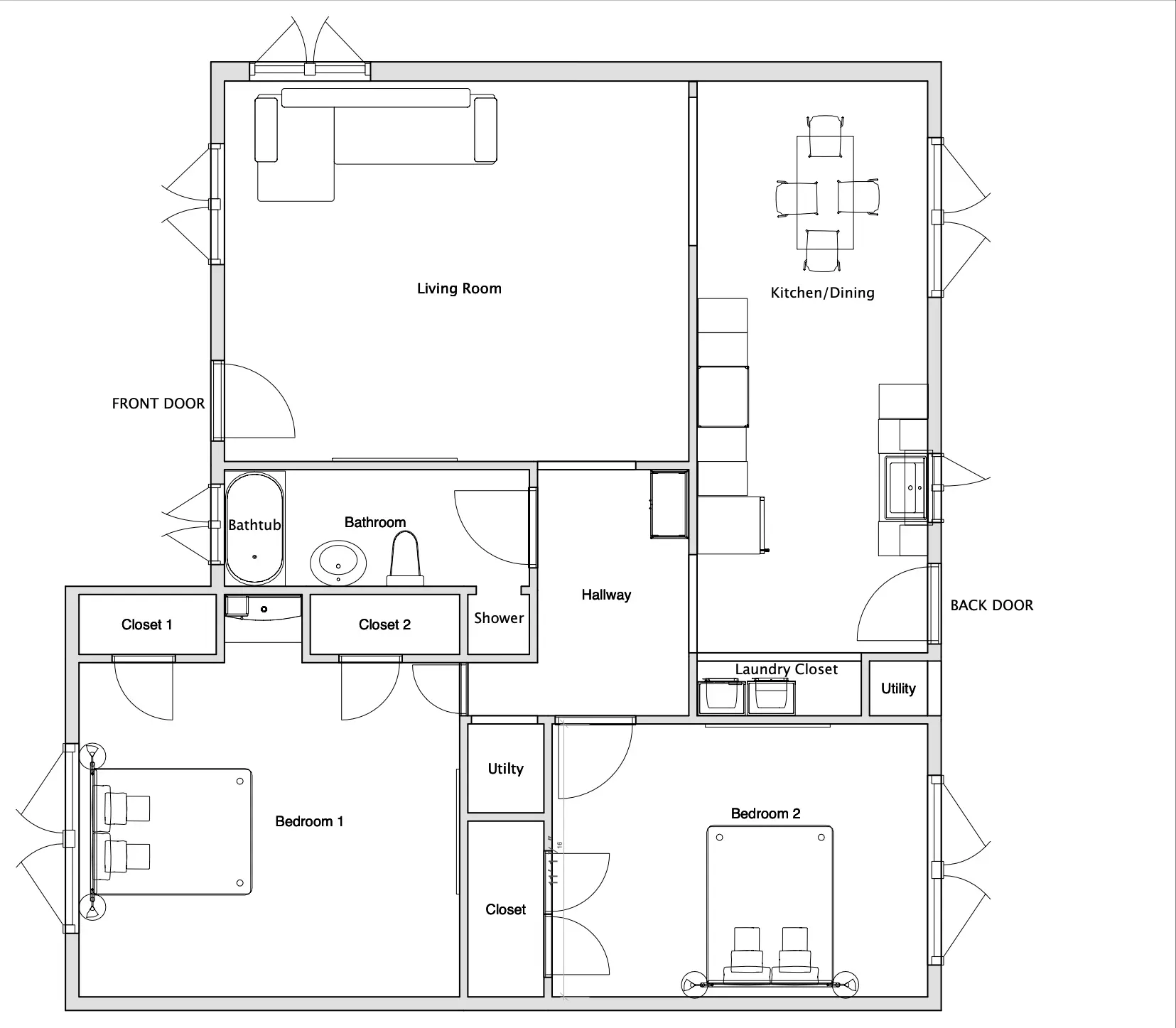
Available now – 2 bedroom/1 bath apartment home with both a front and back walk-out deck. This second-floor unit has been freshly updated with new faucets, carpeting, light fixtures, toilet, stove and refrigerator and new paint throughout. Bedrooms have generous closet space, with the larger bedroom having 2 separate closets.  The bathroom has a separate shower and bath and large vanity cabinet with storage drawers.  Laundry area has washer/dryer hookups that will accommodate the placement of full-size appliances side-by-side | no more trips to the laundromat!  

Some of the amenities also include: generous hallway storage space as well as closet space; refrigerator water line hookup; modern furnace for central heating throughout; dedicated in-unit water heater not shared with any other units; front and back door entrances/exits with walk-out decks. Street parking is directly in front of the building. 

Rental Amount: $1,895 per month and does not include utilities. Maximum occupancy for this unit is 1-4 people. This is more of a mature building so please keep that in mind if applying. No pets/no smoking. 

NOTE: Residents are responsible for all utilities including water and trash. The current trash fee is $45/month and may change annually as refuse rates change.

3rd party payers are accepted as well as Veteran’s S8 | NO LACDA.

Please contact us to schedule a showing.


Details

Bedrooms
2
Bathroom
1
Property Size
1050

Floor Plans

2 Bedroom F

Price: $1,895

Description:

Rooms:
2
Baths:
1
Size:
1050

Compare listings

Compare